农村在变化,人们的心态和对住房的要求也在变化。前两年到农村听到的最多的就是,谁谁谁在哪里买了几套房,农村人都在城里买房子,各个售楼部去打听房子大多数都是卖给农村人了。而近两年农村人都不在城里买房了,而是讨论谁家又建新房子,大别墅,那个外观可大气可豪华了。以前是农村人羡慕城里人,现在是城里人羡慕农村人,有地就是好,各种政策好,建个小别墅,比城里的日子过着舒服多了。今天小编就给大家整理了7款经济实用的三层农村自建房,每一款都很漂亮。
户型一

开间8.2米,进深11.4米,占地面积93.8平方米,主体造价28万左右。一层建筑面积93.8平方米,设计有堂屋、卧室、厨房、餐厅(储藏室)、卫生间。二层建筑面积106.6平方米,设计有三室一厅一卫;三层建筑面积84.8平方米,设计有三室一卫一露台。



户型二

开间9米,进深11米,占地面积102.3平方米,主体造价30万左右。一层建筑面积102.3平方米,设计有客厅、卧室、厨房、餐厅和卫生间;二层建筑面积102.3平方米,设计有三室一厅二卫;三层建筑面积83.5平方米,设计有三室一卫一露台。



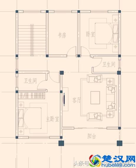
户型三

户型开间10米,进深12.9米,占地面积132.7平方米,主体造价40万左右。一层建筑面积132.7平方米,设计有堂屋、客厅、厨房、餐厅、卧室和卫生间;二层建筑面积137.6平方米,三室一厅一卫一书房;三层建筑面积125.2平方米,设计有三室一卫一活动室。



户型四

开澡12米,进深9米,占地面积104.5平方米,一层建筑面积104.5平方米,设计有客厅、厨房、餐厅、卧室和卫生间;二层和三层建筑面积111.8平方米,设计有三室二厅一卫。


户型五

户型开间11.5米,进深10.1米,占地面积109.7平方米,主体造价30万左右。一层设计有堂屋、客厅、老人房带卫生间、烤火间、厨房、餐厅和卫生间。



户型六

开间13.5米,进深14.3米,占地面积162.9平方米,主体造价40万左右,一层设计有客厅、2卧室、2卫生间、厨房、餐厅和储藏室。



户型七

开间11.9米,进深11.1米,占地面积142平方米,一层设计有堂屋、客厅、卧室、储藏室、卫生间、厨房和餐厅。



6款农村自建房总有一款适合你的风格,想要建房的,可以收藏作为建房参考。



相关阅读








