剪力墙是什么(剪力墙是怎么打造的)大家知道剪力墙是怎么建造的吗?那么它有什么用呢?今天我为大家详细介绍这个剪力墙详细施工流程,对大家今后剪力墙施工有所帮助!
随着建筑施工不断深化,施工技术变得更加复杂,尤其是近年来,使用传统架子管支撑系统已经不能够满足现代化施工中对于建筑模板加固的要求。对于施工效果,施工安全来说造成极大隐患。今天来说说关于制作剪力墙最新产品-剪力墙加固件。
传统圆管木方支撑强度不足,加固不严密,周转使用次数低,单次使用成本高,不节能,不环保,施工局限性大,不稳定因素也越来越愈发明显。
传统钢管架构:
行业中的痛点才是创新的增长点!
方圆建筑模具破旧立新,打破传统常规。一种新型剪力墙加固体系也慢慢出现在施工视野中.......
遵循“大道至简”原则,化繁为简。
方圆新型剪力墙加固体系由双层直板长孔、双层直板角件、单层直板、推拉杆、直阴角件、斜铁等组合而成。
采用Q345B材质钢,承受力是普通钢管的三倍左右,克服了自然涨模现象,规格统一,安装、拆卸极为方便,且支模效果极好,最大化提高施工工作效率。
1、依据设计图纸,确定各墙体所需加固件型号及数量并运至附近。
2、弹线:根据项目部测放的控制轴线,弹出平面控制线及墙边线。
3、焊定位筋:检查钢筋绑扎情况对偏离轴线位移较大的钢筋要进行矫正处理,每隔1m左右加一根定位钢筋,定位钢筋用Ф12钢筋头,定位钢筋长度为剪墙-2mm,两头刷防锈漆。阴角处加两排定位筋。
4、拼装一侧模板:根据设计图纸方木排列间距及位置和数量进行拼装,螺栓孔间距及数量按设计要求进行施工,完成后立起用架杆或者方木进行斜顶防止倾覆。
5、安放內撑及穿墙管、穿墙螺栓:根据墙模板开凿的孔,插入穿墙管及穿墙螺栓。
6、拼装另一侧模板:螺栓孔间距及数量按设计要求进行施工,根据设计图纸方木排列间距及位置和数量进行拼装。
L型剪力墙墙体加固步骤
L型墙加固步骤如下:
1、根据剪力墙加固件布置图,确定该处剪力墙所需配件种类,并运至剪力墙周围。
2、首先安装5号、6号,对接处插入斜铁并敲紧。
3、其次安装3号、4号,对接处插入斜铁并敲紧。
4、然后将7号插入6号,2号插入3号,其交接处插入斜铁。
5、最后安装墙端部的1号单直板(900),并插入斜铁。
6、检查各加固件型号尺寸无误后,使各加固件紧靠次龙骨,从底层依次向上加固,过程中检查模板垂直度、平整度,符合要求后将螺母上紧,最后固定墙端部单直板斜铁加固最终上紧完成。
T型剪力墙墙体加固 步骤
1、根据剪力墙加固件布置图,确定该处剪力墙所需配件种类,并运至剪力墙周围。
2、首先安装4号,将5号插入4号,对接处插入斜铁。
3、其次安装3号,将2号插入3号,对接处插入斜铁。
4、然后安装6号。
5、最后安装墙端部的1号单直板(900),并插入斜铁。
6、检查各加固件型号尺寸无误后,使各加固件紧靠次龙骨,从底层依次向上加固,过程中检查模板垂直度、平整度,符合要求后将螺母上紧,最后固定墙端部单直板斜铁加固最终上紧完成。
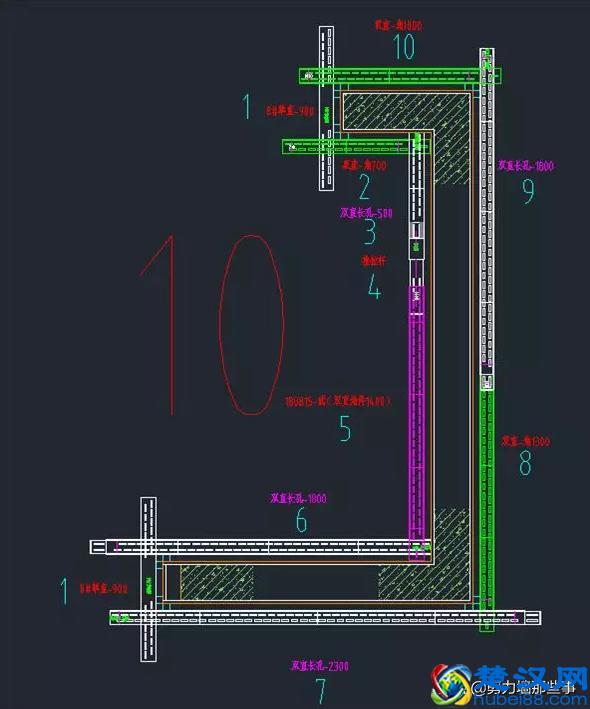
U型剪力墙墙体加固步骤
1、根据剪力墙加固件布置图,确定该处剪力墙所需配件种类,并运至剪力墙周围。
2、首先安装3号。
3、其次将4号插入5号安装,使3号与4号对接处插入斜铁。
4、然后将2号插入3号、5号插入6号对接处插入斜铁。
5、然后按顺序安装7号、8号、9号、10号,交接处插入斜铁。
6、最后安装墙端部的1号单直板(900),并插入斜铁。
7、检查各加固件型号尺寸无误后,使各加固件紧靠次龙骨,从底层依次向上加固,过程中检查模板垂直度、平整度,符合要求后将螺母上紧,最后固定墙端部单直板斜铁加固最终上紧完成。
验收、拆除与存放
1、检查验收:安装加固完成后,对加固件连接处、斜铁及丝杆螺栓进行检查,确保全数检查无遗漏。根据墙边线及控制线,利用铅垂仪以及线坠等工具进行复测,对平整、垂直度超出偏差位置进行调整,确保符合规范要求偏差之内。
2、浇筑混凝土:浇筑混凝土时,严格按照混凝土浇筑技术交底执行,分层浇筑,不能过振,回振,杜绝涨模、鼓模等质量问题的发生。
3、模板拆除:
3.1、接到拆模通知单方准拆模。墙模及梁侧模拆除时砼强度能保证表面及楞角不因拆除模板受损时,方可拆除。
3.2、模板拆除的顺序和方法,应遵循先支后拆、先非承重部位后承重部位原则。加固件拆除从上到下进行,然后拆除方木背楞,最后拆除模板。
3.3、拆除时从上而下,先拆除螺丝,接着拆除新型剪力墙加固件,高处位置禁止抛扔,防止损坏构件及出现安全事故。
4、清理与存放:拆下的模板应及时清理粘结物,避免用尖锐器物清理损伤模板,拆下的新型剪力墙加固件要及时整理摆放整齐,防止混乱。准备下层使用。
另外附上剪力墙加固件施工案例:
南通二建清和园项目:墙高度3米,使用方圆新型剪力墙加固体系只需加固三道。
剪力墙施工效果
剪力墙加固效果
剪力墙加固效果
剪力墙加固效果
剪力墙打造施工效果图
剪力墙打造施工效果图
剪力墙打造效果图
剪力墙打造效果图
剪力墙打造效果图
再次声明,仅作为非专业人士的扫盲贴,对专业人士来说尚不严谨,请自行研究。
本文地址:问答解惑频道 https://www.hkm168.com/live/121811.html,易企推百科一个免费的知识分享平台,本站部分文章来网络分享,本着互联网分享的精神,如有涉及到您的权益,请联系我们删除,谢谢!



相关阅读







